FUL油加熱散熱器

概述
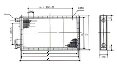
適用于熱媒為導熱油的空氣加熱器,它己在簾子布浸膠、熱風拉幅機、熱定型機、焙烘機、印鐵、涂裝、噴霧干燥、木材加工等行業設備中得到應用,是目前高溫加熱的適用產品。

FUL型散熱器外形尺寸
主要技術參數
適用于熱媒為導熱油的空氣加熱器,它己在簾子布浸膠、熱風拉幅機、熱定型機、焙烘機、印鐵、涂裝、噴霧干燥、木材加工等行業設備中得到應用,是目前高溫加熱的適用產品。

FUL型散熱器外形尺寸
型號 | 迎風面積m2 |
散熱面積 m2 |
凈通風截面積m2 | 表面管數 | 排數 | 連接管DN(in) | 尺寸(mm) | ||||||||||
A | B | A1 | A2 | B1 | B2 | D | n | N | m | M | |||||||
FUL-5×5 | 0.257 | 10.854 | 0.123 | 9 | 2 | 3/2 | 500 | 513 | 560 | 600 | 553 | 593 | 75 | 4 | 400 | 4 | 400 |
8×5 | 0.410 | 17.366 | 0.196 | 800 | 860 | 900 | 7 | 700 | |||||||||
10×5 | 0.513 | 21.708 | 0.245 | 1000 | 1060 | 100 | 9 | 900 | |||||||||
6×6 | 0.405 | 17.366 | 0.191 | 12 | 2 | 3/2 | 600 | 675 | 660 | 700 | 715 | 755 | 75 | 5 | 500 | 5 | 500 |
8×6 | 0.54 | 23.155 | 0.255 | 800 | 860 | 900 | 7 | 700 | |||||||||
10×6 | 0.675 | 28.944 | 0.318 | 1000 | 1060 | 110 | 9 | 900 | |||||||||
12×6 | 0.81 | 34.733 | 0.381 | 1200 | 1260 | 1300 | 11 | 1100 | |||||||||
8×8 | 0.67 | 28.944 | 0.313 | 15 | 2 | 2 | 80 | 837 | 860 | 900 | 877 | 917 | 75 | 7 | 70 | 7 | 700 |
10×8 | 0.837 | 36.18 | 0.391 | 1000 | 1060 | 1100 | 9 | 900 | |||||||||
12×8 | 1.004 | 43.416 | 0.469 | 1200 | 1260 | 1300 | 11 | 1100 | |||||||||
14×8 | 1.172 | 50.652 | 0.547 | 1400 | 1460 | 1500 | 13 | 1300 | |||||||||
14×10 | 1.474 | 64.159 | 0.683 | 19 | 2 | 3/2 | 1400 | 1053 | 1460 | 1500 | 1093 | 1133 | 75 | 9 | 900 | 13 | 1300 |
16×10 | 1.685 | 73.325 | 0.78 | 1600 | 1660 | 1700 | 15 | 1500 | |||||||||
18×10 | 1.895 | 82.490 | 0.878 | 1800 | 1860 | 1900 | 17 | 1700 | |||||||||
18×12 | 2.284 | 99.857 | 1.052 | 23 | 2 | 3 | 1800 | 1269 | 2060 | 2100 | 1309 | 1349 | 75 | 11 | 1100 | 17 | 1700 |
20×12 | 2.538 | 110.952 | 1.169 | 2000 | 2060 | 2100 | 19 | 19 | |||||||||
22×12 | 2.792 | 122.047 | 1.286 | 2200 | 2260 | 2300 | 21 | 2100 | |||||||||
25×12 | 3.173 | 138.69 | 1.461 | 2500 | 2560 | 2600 | 24 | 2400 |
相關產品